Diseñada para el sector de construcción en seco, esta roladora permite fabricar dos tipos de esquineros metálicos utilizando una sola máquina, optimizando el uso del equipo y el espacio en planta.
Su diseño de doble línea independiente garantiza una operación flexible, mayor estabilidad durante la producción y un mejor retorno de inversión para fabricantes de perfiles de tablaroca.
Dos modelos en una sola máquina
Esta máquina incorpora dos sistemas de alimentación independientes, lo que permite producir distintos modelos de esquinero según el lado de entrada seleccionado.
Al alimentar por un lado se fabrica un perfil, y al cambiar al otro se obtiene el segundo tipo, sin necesidad de ajustes complejos. Esta solución evita la inversión en dos equipos diferentes, ayudando a reducir costos y optimizar el espacio de producción.
| Roladora para esquineros | ||
| Item | Información adicional | |
| Materia prima : | Acero galvanizado | Espesor(MM): calibre24-30/0.3-0.5mm |
| Fluencia : | ≤300 Mpa | |
| Velocidad de la línea | 0-15m/min | |
| Desbobinador | Manual | |
| Capacidad de carga de desbobinador | 1.5t | |
| Alimentador con servo motor: | 0.85kw | |
| Fuerza nominal de la troqueladora | 25t | Tiene sistema de lubricación |
| Material prima de brocas: | SKD-11 | |
| No. de matrices: | 2 juegos | |
| Potencia de motor para conformar | 7.5kw | |
| Sistema de transmisión : | Cadena | |
| Paso de formar | 14 pasos | * Según sus perfiles |
| Estructura de la máquina: | Soporte de hierro forjado | |
| Materia del eje | 40Cr | |
| Material de los rodillos : | GCr15 | 5 años de garantía |
| Diámetro del eje | φ55 mm | |
| Forma de corte | Corte en movimiento | Hidráulico |
| Potencia de servo motor | 3kw | |
| Materia prima de cuchillas | SKD-11 | 2 juegos |
| Potencia del motor de corte | 5.5kw | Ofrecido por el grupo hidráulico |
| Marca de encoder | Omron | |
| Tolerancia de longitud | ≤+/- 1mm | |
| Longitud de la mesa de salida | 4m | |
| Inversor : | Marca Yaskawa | |
| PLC : | Marca Siemens | |
| HMI : | Marca MCGS | |
| Lengua : | Español | |
| Electricidad : | 440V 60Hz 3Ph | * O Según su requisito |
| Color de la máquina : | Blanco | * O Según su requisito |
| Entrega : | 90 Días | |
| Contenedor | 1*40GP | |
| Peso total | 6tons | |
| Dimensiones : | 15m*1.6m | |
Diseñada para el mercado de tablaroca
Esta solución es ideal para fabricar distintos tipos de esquineros metálicos, incluyendo modelos estándar y versiones con diseño curvo, así como perfiles galvanizados utilizados en sistemas de tablaroca.
Trabaja con lámina galvanizada en diferentes rangos de espesor, adaptándose tanto a perfiles convencionales (0.3–0.45 mm) como a aplicaciones especiales (hasta 0.5 mm).
Con una velocidad de producción de hasta 15 metros por minuto, la máquina garantiza un proceso eficiente, estable y con excelente precisión en cada pieza.
Alta precisión y estabilidad
Su estructura sólida, junto con el proceso de conformado en frío, permite obtener perfiles con excelente consistencia y calidad en cada producción.
Esto se traduce en piezas con acabado superior, alta precisión y un rendimiento estable incluso en operaciones prolongadas. Es la opción perfecta para fabricantes que buscan ofrecer productos confiables y competitivos en el mercado.
Fabricante chino con experiencia en México
Fabricamos directamente en China y contamos con amplia trayectoria suministrando equipos al mercado mexicano.
Para garantizar un mejor servicio, disponemos de:
Bodega en territorio mexicano
Soporte técnico en sitio
Asistencia para instalación y puesta en marcha
Experiencia en procesos logísticos y normativos locales
Desarrollamos soluciones personalizadas de acuerdo con las necesidades de producción y el tipo de perfil de cada cliente.
Excelente relación calidad-precio
Esta máquina reúne funcionalidad, precisión y un diseño optimizado, ofreciendo un excelente equilibrio entre rendimiento y costo.
Gracias a su concepto eficiente, permite ampliar la capacidad de producción sin tener que invertir en equipos adicionales, convirtiéndose en una opción altamente rentable para el crecimiento del negocio.
¿Quieres más información sobre esta máquina?
Escríbenos por WhatsApp a Lydia: +86 151 9025 4845
y te brindaremos asesoría técnica a medida según tu proyecto.
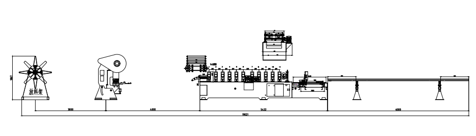
1. Decoiler

2. Feeding

3.Punching

4. Roll forming stands

5. Driving system

6. Cutting system

Others

Out table














